
Katalognummer: d443988
6 Personen Ferienhaus in Lemvig
Charmantes Ferienhaus in der Nähe von Bonnet (Lemvig) – Platz für 6 Personen. Willkommen in diesem gemütlichen und gut ausgestatteten Ferienhaus in der ruhigen und landschaftlich reizvollen Gegend von Bonnet. Das Haus ist ideal für Familien oder Freunde, die einen erholsamen Urlaub in ruhiger Umgebung, nahe der Natur und kulturellen Erlebnissen verbringen möchten. Über das Haus: Platz für 6 Personen. 3 helle und geräumige Schlafzimmer (alle mit Einzelbetten) Gut ausgestattete Küche mit Geschirrspüler, Backofen, Herd, Kühlschrank, Kaffeemaschine und Mikrowelle. Offenes Wohn-/Esszimmer mit bequemen Möbeln, Esstisch und Fernseher mit dänischen Programmen und ZDF. Badezimmer mit Dusche und WC. Außenausstattung: Großer privater Garten mit Gartenmöbeln, Grill und viel Platz zum Spielen und Entspannen. Terrasse mit Blick auf die umliegende Landschaft. Privatparkplatz in der Einfahrt. Lage: Das Haus liegt in ruhiger, ländlicher Umgebung in Bonnet und ist ein guter Ausgangspunkt für Wanderungen, Radtouren und Ausflüge in die Umgebung. Die umliegenden Dörfer mit Märkten, Restaurants und Sehenswürdigkeiten sind nur eine kurze Fahrt entfernt. Die umliegende Natur lädt sowohl zum Entspannen als auch zu einem aktiven Urlaub ein. Die Nordsee liegt in unmittelbarer Nähe. Praktische Informationen: Kostenloses WLAN. Haustiere sind im Haus erlaubt. Rauchen im Haus verboten. Keine Vermietung an Jugendgruppen!Kurz vor Ihrem Ankunftsdatum kann eine rückzahlbare Kaution erhoben werden. Die Kaution stellt sicher, dass Ihr Aufenthalt reibungslos verläuft, und deckt eventuelle Zusatzleistungen oder Verbrauchskosten ab.Diese Kaution deckt den Verbrauch von Nebenkosten während Ihres Aufenthalts sowie zusätzliche in Anspruch genommene Leistungen ab.Der endgültige Betrag wird anhand der tatsächlichen Zählerstände und Nutzung zusätzlicher Services angepasst. Ein etwaiger Restbetrag wird Ihnen innerhalb von 21 Tagen nach dem Check-out zurückerstattet.Die Kaution dient lediglich als Vorauszahlung für Leistungen, die Sie ohnehin bezahlen würden, und ermöglicht einen reibungslosen Ablauf Ihres Aufenthalts und Check-outs.
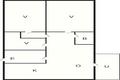
, Küche (Kochherd (2 Kochplatten), Kaffeemaschine, Mikrowelle, Spülmaschine, Kühlschrank, Tiefkühlschrank (100-139L)), Wohn-/Schlafzimmer (TV (dänische Fernsehsender)), Schlafzimmer (2x Einzelbett), Schlafzimmer (2x Einzelbett), Schlafzimmer (2x Einzelbett), Badezimmer (Trockner, Waschbecken, Dusche, Toilette, Waschmaschine), Solarenergie
Diese Wohnung wird zum Erhalt der Ruhe nicht an Gruppen mit Jugendlichen vermietet


Foto antippen zum Vergrößern
Pure Natur oder quirliges Leben? Von Ihrem Ferienhaus an Jütlands Westküste aus können Sie zwischen beidem wählen.
Auf Holmsland oder der Insel Rømø erleben Sie die faszinierende Nordseeküste oder besuchen Sie Blåvand oder Esbjerg mit vielfältigen Möglichkeiten zum Shopping und vielen Sehenswürdigkeiten.
Schlafzimmer: 3
Badezimmer: 1
Dusche
Waschmaschine
Kaffeemaschine
Mikrowelle
Antennen TV