Reisebüro Fewo4you, IBG-Internetservice
Kyllweg 2, 06217 Merseburg, Deutschland
Telefon: +49 (0) 3461 45 69 00
Ferienhaus Esme - 400m from the sea

Katalognummer: d361500
Ferienhaus für bis zu 12 Personen in Løkken mit einer Wohnfläche von 175 Quadratmetern.
Allgemeine Beschreibung Ferienhaus Esme - 400m from the sea
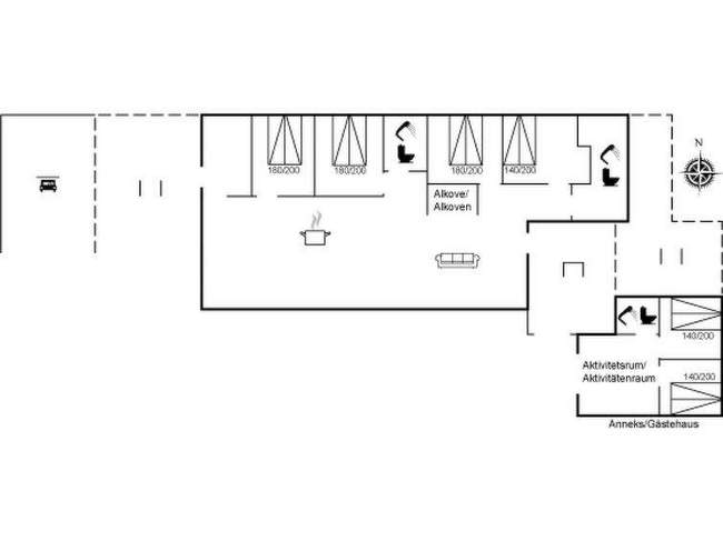
Innenbereich
"Esme" - 400m from the sea", 6-Zimmer-Haus 175 m2. Objekt geeignet für 12 Erwachsene + 1 Kind. Wohnzimmer mit TV. 1 Zimmer mit 2 Diwanbetten. 1 Zimmer mit 1 Doppelbett. 1 Zimmer mit 1 Doppelbett. Studio 1 Zimmer mit mit 1 Doppelbett. Küche (Backofen, Geschirrspüler, 4 Induktionskochplatten, Mikrowelle, Tiefkühler). 3 Duschen/WC. Zur Verfügung: Kinderhochstuhl, Babybett. Internet (WLAN). Bitte beachten: Nichtraucher-Unterkunft. Buchungen sind nur zu touristischen Zwecken erlaubt. 860-40443
Weitere Informationen
Einfamilienhaus, Baujahr 2023. 400 m vom Meer. Zur Alleinbenutzung: naturbelassenes Grundstück 705 m2. Aussendusche, Grill. Im Hause: Waschmaschine, Wäschetrockner. Parkplatz beim Haus. Carport. Lebensmittelgeschäft 500 m. Der Besitzer akzeptiert keine Jugendgruppen.
Regionalinformationen Nordwestjütland
Breite Sandstrände und charmate Badeorte erwarten Sie bei Ihrem Urlaub in einem Ferienhaus in Nordwestjütland. Die Gegend erstreckt sich entlang der Nordseeküste und bietet eine beeindruckende Mischung aus Sandstränden, Dünen, Klippen und Fischerdörfern.
Erfahren Sie zum Beispiel viel wissenenswertes über das Leben an und in der Nordsee im Nordseemuseum Hirtshals. Oder besuchen Sie Skagen, die Spitze Nordwestjütlands, dort wo Nordsee und Ostsee zusammentreffen (Foto).
Wie auf einer Perlenschnur erstrecken sich die Orte entlang der Jammerbucht. Südlich von Hirtshals finden Sie Erholung in den zahlreichen, zum Teil in die Dünenlandschaft eingebetteten Ferienhäusern.
Allgemeine Klassifizierung Ferienhaus Esme - 400m from the sea
Überblick
Ort: Løkken
Region: Nordwestjütland
Land: Dänemark
Personenzahl: 12
Themen
keine Haustiere, Urlaub am Wasser
Sportmöglichkeiten
Tischtennis
Ausstattung
Zimmeranzahl
Schlafzimmer: 6
Badezimmer: 3
Toiletten: 3
Ausstattungsmerkmale im Innenbereich
Allgemein
Sanitär/Bad

Dusche

Waschmaschine

Whirlpool
Küche

Mikrowelle

Spülmaschine
Komfort

WLAN
Ausstattungsmerkmale im Außenbereich

Grillmöglichkeit

Kfz-Stellplatz

Tischtennis
Sonstige Ausstattungsmerkmale

Kinderbett
In Vermittlung für
HDD GmbH
Adresse:
Heinrich-von-Stephan-Str. 25
79100 Freiburg
Copyright
IBG-Internetservice 2002 - 2026
Impressum |
Datenschutz (Objekt-ID: d361500)