Reisebüro Fewo4you, IBG-Internetservice
Kyllweg 2, 06217 Merseburg, Deutschland
Telefon: +49 (0) 3461 45 69 00
Ferienhaus Zölestine - from the sea

Katalognummer: d443995
Ferienhaus für bis zu 10 Personen in Fjerritslev mit einer Wohnfläche von 122 Quadratmetern.
Allgemeine Beschreibung Ferienhaus Zölestine - from the sea
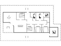
Innenbereich
"Zölestine" - from the sea", 4-Zimmer-Haus 122 m2. Objekt geeignet für 8 Erwachsene + 3 Kinder. Wohnzimmer mit TV. 1 Zimmer mit 1 Doppelbett. 1 Zimmer mit 1 Doppelbett. 1 Zimmer mit 2 Betten. Offene Galerie 1 Zimmer mit 2 Betten und 2 Schlafmöglichkeiten. Küche (Backofen, Geschirrspüler, Mikrowelle, Tiefkühler). 2 Duschen/WC, Whirlbadewanne. Zur Verfügung: Kinderhochstuhl, Babybett. Internet (WLAN). Bitte beachten: Nichtraucher-Unterkunft. Maximal 2 Haustiere/Hunde erlaubt. Buchungen sind nur zu touristischen Zwecken erlaubt. 849
Weitere Informationen
Einfamilienhaus, Baujahr 2004. 1 km vom Meer. Zur Alleinbenutzung: naturbelassenes Grundstück 1'147 m2. Grill, Feuerstelle. Im Hause: Sauna, Waschmaschine, Wäschetrockner. Parkplatz beim Haus. Lebensmittelgeschäft 5 km. Golfplatz 7.7 km. Der Besitzer akzeptiert keine Jugendgruppen.
Regionalinformationen Nordwestjütland
Breite Sandstrände und charmate Badeorte erwarten Sie bei Ihrem Urlaub in einem Ferienhaus in Nordwestjütland. Die Gegend erstreckt sich entlang der Nordseeküste und bietet eine beeindruckende Mischung aus Sandstränden, Dünen, Klippen und Fischerdörfern.
Erfahren Sie zum Beispiel viel wissenenswertes über das Leben an und in der Nordsee im Nordseemuseum Hirtshals. Oder besuchen Sie Skagen, die Spitze Nordwestjütlands, dort wo Nordsee und Ostsee zusammentreffen (Foto).
Wie auf einer Perlenschnur erstrecken sich die Orte entlang der Jammerbucht. Südlich von Hirtshals finden Sie Erholung in den zahlreichen, zum Teil in die Dünenlandschaft eingebetteten Ferienhäusern.
Allgemeine Klassifizierung Ferienhaus Zölestine - from the sea
Überblick
Ort: Fjerritslev
Region: Nordwestjütland
Land: Dänemark
Personenzahl: 10
Themen
keine Haustiere, Urlaub am Wasser
Ausstattung
Zimmeranzahl
Schlafzimmer: 5
Badezimmer: 2
Toiletten: 2
Ausstattungsmerkmale im Innenbereich
Allgemein
Sanitär/Bad

Dusche

Sauna

Waschmaschine
Küche

Mikrowelle

Spülmaschine
Komfort

WLAN
Ausstattungsmerkmale im Außenbereich

Grillmöglichkeit

Kfz-Stellplatz
Sonstige Ausstattungsmerkmale
In Vermittlung für
HDD GmbH
Adresse:
Heinrich-von-Stephan-Str. 25
79100 Freiburg
Copyright
IBG-Internetservice 2002 - 2026
Impressum |
Datenschutz (Objekt-ID: d443995)