
Katalognummer: d468779
Ferienhaus für bis zu 10 Personen in Løkken mit einer Wohnfläche von 229 Quadratmetern.
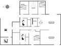
Foto antippen zum Vergrößern
Breite Sandstrände und charmate Badeorte erwarten Sie bei Ihrem Urlaub in einem Ferienhaus in Nordwestjütland. Die Gegend erstreckt sich entlang der Nordseeküste und bietet eine beeindruckende Mischung aus Sandstränden, Dünen, Klippen und Fischerdörfern.
Erfahren Sie zum Beispiel viel wissenenswertes über das Leben an und in der Nordsee im Nordseemuseum Hirtshals. Oder besuchen Sie Skagen, die Spitze Nordwestjütlands, dort wo Nordsee und Ostsee zusammentreffen (Foto).
Wie auf einer Perlenschnur erstrecken sich die Orte entlang der Jammerbucht. Südlich von Hirtshals finden Sie Erholung in den zahlreichen, zum Teil in die Dünenlandschaft eingebetteten Ferienhäusern.
Breite Sandstrände und die große Wanderdüne, Rubjerg Knude sind charakteristisch für die Jammerbucht. Die Jammerbucht erstreckt sich von Hirtshals im Norden über Lökken, Blokhus bis Bulbjerg im Süden und ist Teil der dänischen Nordseeküste an der Nordwestküste Jütlands.
An der Jammerbucht finden Sie zahlreiche Ferienhäuser, auch direkt an der Küste in die Dünenlandschaft eingebettet. Finden Sie Erholung in der abwechlungsreichen Landschaft oder erfahren Sie viel über das Leben an und in der Nordsee im Nordsøen Oceanarium in Hirtshals.
Ihr Auto können Sie bei einem Strandtag zwischen Blokhus und Lökken einfach mitnehmen, der Küstenabschnitt ist mit dem Auto befahrbar.
Schlafzimmer: 5
Badezimmer: 2
Toiletten: 2
Dusche
Waschmaschine
Whirlpool
Mikrowelle
Spülmaschine
WLAN
Grillmöglichkeit
Kfz-Stellplatz
Kinderbett